Il progetto della finestra 4Overland nasce da un gruppo di appassionati viaggiatori overland.
Il profilo è progettato, realizzato e testato direttamente dalla nostra azienda, ed è nato specificamente per l’utilizzo su camion overland, che non hanno le stesse esigenze né delle applicazioni domestiche né di quelle dei veicoli ricreazionali.
Il prodotto è stato studiato, calcolato e disegnato al CAD, con diversi obiettivi di ottimizzazione:
- Omologazione per utilizzo automotive
- Doppio vetro
- Resistenza ad ogni altitudine raggiungibile su strada
- Isolamento termico
- Impermeabilità totale, anche sotto la pressione costante del vento
- Compattezza estrema dell’assieme, compatibilmente con gli obiettivi precedenti

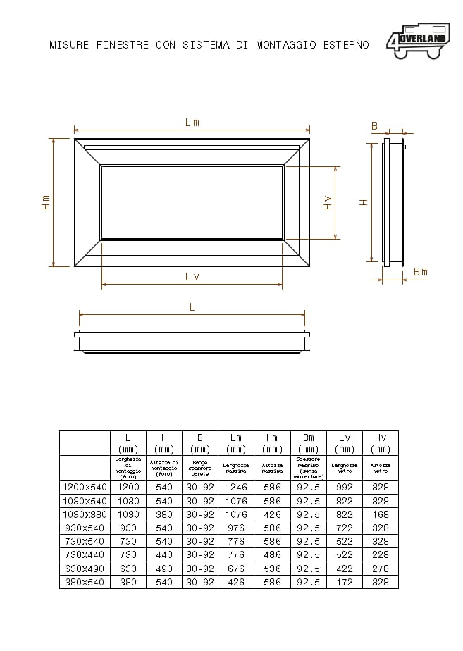
Caratteristiche tecniche
Clicca sul numero corrispondente qui a lato per scoprire tutte le caratteristiche tecniche delle nostre finestre.

Percorso Acqua
Il profilo 4Overland è studiato in modo che le componenti funzionali e i rinforzi in acciaio del profilo rimangano in camere assolutamente stagne.
L’acqua che dovesse filtrare dalle guarnizioni del vetro ha un percorso di scarico che passa da camere interne appositamente studiate per questa funzione.




